Supercell

The KROFTA SUPERCELL is the most compact Dissolved Air Flotation (DAF) clarifier available and requires the minimum amount of space for installation. Its operational low weighted load of only 732 kg/m2 make it ideal for installation in tight places or on the roof of existing buildings. The patented zero velocity principle allows the KROFTA SUPERCELL to operate with the minimum amount of horizontal turbulence in the flotation tank, thus allowing flotation to occur in the shortest time.

Competitors’ equipment relying on the incoming flow radiating out from a fixed central inlet suffer from excessive turbulence and the movement of the flow to the outside of the tank results in the accumulation of floated sludge at the upside. The high turbulence in the centre means the effective surface area available for flotation is much reduced as the air bubbles cannot rise until the flow velocity reduces.

The adjustable manifold on the inlet of the KROFTA SUPERCELL also results in an even sludge blanket across the surface. The patented KROFTA Spiral Scoop allows the floated sludge to be removed at the highest consistency as the scoop is angled to allow free flow towards the outlet.

All KROFTA SUPERCELL have sumps to remove settled solids and the tank floors and walls are kept clean by scrapers attached to the moving carriage. A valve operated by a simple timer can control discharge of settled solids. The KROFTA SUPERCELL has all wetted parts manufactured in stainless steel and can be supplied in a variety of configurations.

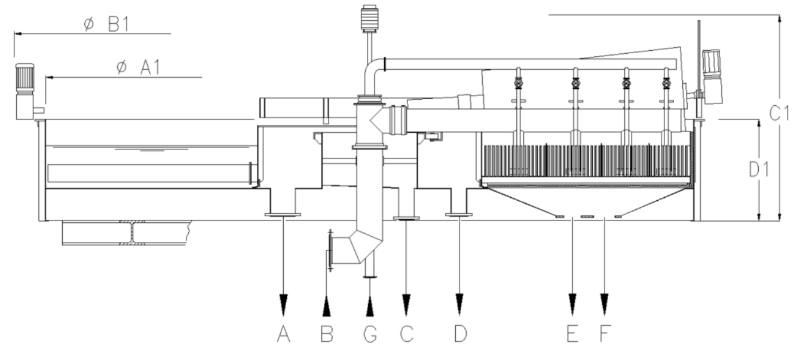
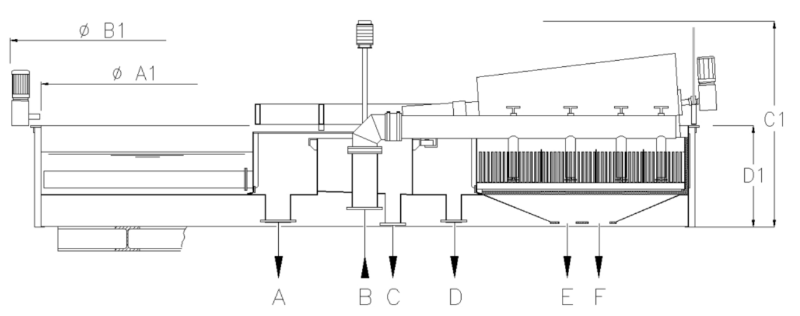
A             Clarified water outlet                     E             Sediment discharge

B             Waste water inlet                            F             Flotation unit drain

C             Floated sludge discharge               G            Pressurized water inlet

D             Recycle water